KÜ üldkoosoleku viies päevakorrapunkt / Пятый пункт повестки дня общего собрания КТ
KÜ üldkoosoleku viies päevakorrapunkt puudutab mööblikaupluse omaniku ettepanekut meile loovutada 1 m oma territooriumist talle kinnise parkla ehitamiseks. Vastutasuks saaksime kaks parkimiskohta. Ettepaneku tekst on varem avaldatud ja ka seekord lisan selle manustatud dokumendina.
Pean kohe vajalikuks öelda, et Korteriühistu pädevusse ei kuulu korteriomanike kinnisvaraga kauplemine. Ja ka üldkoosoleku pädevusse ei kuulu see mitte. Saame vaid algatada uue maa ühiskasutuse kokkuleppe sõlmimise mis lubaks nimetatud maariba naabrile rentida.
Või mitte, sest meie kasu selles ettevõtmises on tundub, et olematu.
Пятый пункт повестки дня общего собрания КТ касается предложения собственника мебельного магазина отдать ему в аренду 1 м. нашей территории для строительства частной парковки. Взамен мы получили бы два парковочных места. Текст предложения уже ранее был опубликован и в этот раз я добавлю этот вложенный документ.
Считаю необходимым сразу объяснить, что в компетенцию квартирного товарищества не входят сделки с недвижимостью собственников квартир. Мы можем только инициировать заключение договора насчет общего использования новой земли, что позволило дать в аренду названный земельный участок.
Или нет, поскольку наша польза в этом начинании не существенна.
Paldiski mnt 77 Pakkumine maa-ala kordategemiseks / Paldiski mnt 77 Предложение по обустройству территории.
Pakkumine maa-ala kordategemiseks
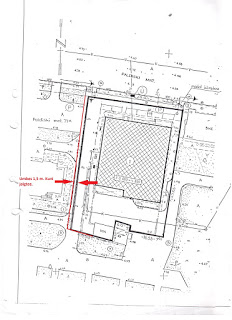
OÜ Furnit, reg.kood 10524614, kelle omanduses on kinnistu asukohaga Paldiski mnt 77 ja seal asuv kauplushoone, soovib laiendada kaupluse rentnikele ja klientidele parkimisala aj selleks piirata Kaupluse ja Paldiski 77a elamu vahel maa-ala kivist liiklustõketega, mis on märgitud punase joonega lisatud plaanil.
Kuna hõivab sel juhul parkimisala ca 1,5 m laiusega korteriühistule kuuluva maa-ala,
palub OÜ Furnit korteriühistut anda selleks nõusoleku maa-ala määramata ajaks kasutamiseks.
Selle vastu pakub OÜ Furnit asfalteerida seda maa-ala üheaegselt omaga, sest mõlemad vajavad ammu kordategemist ning täiendavalt pakub OÜ Furnit anda korteriühistu kastusse 2 parkimiskohta moodustataval parklal.
Lugupidamisega
Gleb Plešakov
5111047
OÜ Furnit
Paldiski mnt 77
Juhatuse liige
Предложение по обустройству территории.
OÜ Furnit, регистрационный код 10524614, собственник недвижимости, находящейся по адресу Палдиски мнт. 77 и расположенного там магазина, желает расширить для арендаторов и клиентов область парковки и для этого ограничить область участка между магазином и домом Палдиски мнт 77а каменными дорожными барьерами, по красной линии, размеченной на прилагаемом плане. Поскольку в таком случае зона парковки будет занимать около 1.5 метра шириной земельный участок, принадлежащий квартирному товариществу, OÜ Furnit просит квартирное товарищество дать свое согласие на использование земли на неопределенный срок.
Взамен этого OÜ Furnit предлагает асфальтировать часть и вашей территории вместе со своей, поскольку оба наши участка уже давно нуждаются в приведении в порядок, также дополнительно OÜ Furnit выделит товариществу 2 парковочных места на образованной парковке.
Lugupidamisega
Gleb Plešakov
5111047
OÜ Furnit
Paldiski mnt 77
Juhatuse liige


Leave a Reply
Want to join the discussion?Feel free to contribute!