Paldiski mnt 77 Pakkumine maa-ala kordategemiseks / Paldiski mnt 77 Предложение по обустройству территории.
Pakkumine maa-ala kordategemiseks
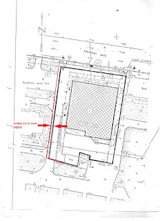
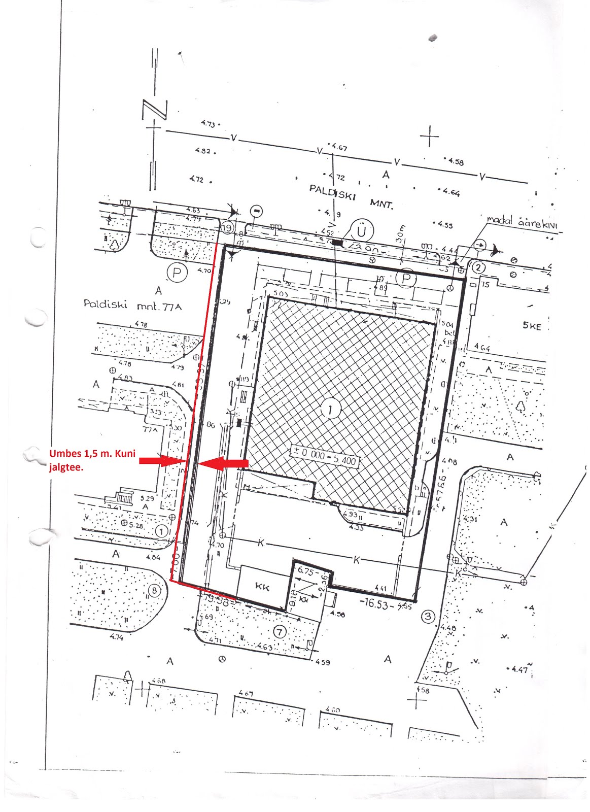
OÜ Furnit, reg.kood 10524614, kelle omanduses on kinnistu asukohaga Paldiski mnt 77 ja seal asuv kauplushoone, soovib laiendada kaupluse rentnikele ja klientidele parkimisala aj selleks piirata Kaupluse ja Paldiski 77a elamu vahel maa-ala kivist liiklustõketega, mis on märgitud punase joonega lisatud plaanil.
OÜ Furnit, reg.kood 10524614, kelle omanduses on kinnistu asukohaga Paldiski mnt 77 ja seal asuv kauplushoone, soovib laiendada kaupluse rentnikele ja klientidele parkimisala aj selleks piirata Kaupluse ja Paldiski 77a elamu vahel maa-ala kivist liiklustõketega, mis on märgitud punase joonega lisatud plaanil.
Kuna hõivab sel juhul parkimisala ca 1,5 m laiusega korteriühistule kuuluva maa-ala,
palub OÜ Furnit korteriühistut anda selleks nõusoleku maa-ala määramata ajaks kasutamiseks.
Selle vastu pakub OÜ Furnit asfalteerida seda maa-ala üheaegselt omaga, sest mõlemad vajavad ammu kordategemist ning täiendavalt pakub OÜ Furnit anda korteriühistu kastusse 2 parkimiskohta moodustataval parklal.
Lugupidamisega
Gleb Plešakov
5111047
OÜ Furnit
Paldiski mnt 77
Juhatuse liige
Предложение по обустройству территории.
OÜ Furnit, регистрационный код 10524614, собственник недвижимости, находящейся по адресу Палдиски мнт. 77 и расположенного там магазина, желает расширить для арендаторов и клиентов область парковки и для этого ограничить область участка между магазином и домом Палдиски мнт 77а каменными дорожными барьерами, по красной линии, размеченной на прилагаемом плане. Поскольку в таком случае зона парковки будет занимать около 1.5 метра шириной земельный участок, принадлежащий квартирному товариществу, OÜ Furnit просит квартирное товарищество дать свое согласие на использование земли на неопределенный срок.
Взамен этого OÜ Furnit предлагает асфальтировать часть и вашей территории вместе со своей, поскольку оба наши участка уже давно нуждаются в приведении в порядок, также дополнительно OÜ Furnit выделит товариществу 2 парковочных места на образованной парковке.
Lugupidamisega
Gleb Plešakov
5111047
OÜ Furnit
Paldiski mnt 77
Juhatuse liige
Gleb Plešakov
5111047
OÜ Furnit
Paldiski mnt 77
Juhatuse liige
Lugupidamisega,
Guido Koidik
K?? Paldiski mnt 77a
Juhatuse esimees
Telefon 56601257
E-post: yhistu77a@hotmail.com


Leave a Reply
Want to join the discussion?Feel free to contribute!